+86 18101795790
Contact:Gensors
Phone:+86 18101795790
TEL:+86 021-67733633
Email:sales@bmbond.com
Address:22, Lane 123 Shenmei Road Pudong New District Shanghai, China
In modern industry and research, fans are critical power equipment whose performance directly impacts system efficiency, energy consumption, and stability. The uniformity of the outlet dynamic pressure is a vital performance indicator. Non-uniform flow fields cause energy losses, reduce fan efficiency, induce vibration and noise, and adversely affect downstream components. To address this, a research institute conducted a systematic test on a newly developed high-efficiency fan, aiming to provide detailed flow field data for design optimization.

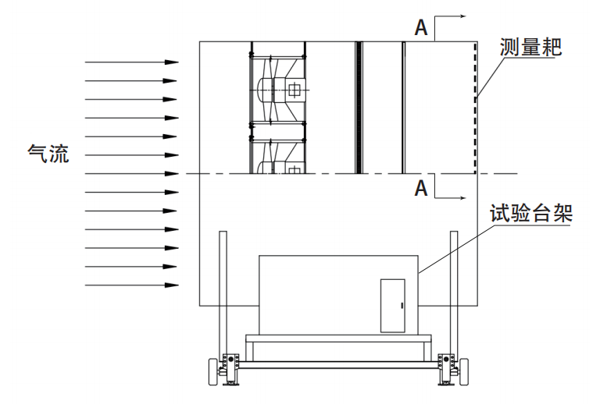
Figure 1: Installation Location of the Pitot Tube Measurement Rake

Figure 2: Schematic Diagram of Pitot Tube Test Points and Location
I. Core Objectives
A newly developed high-pressure centrifugal fan exhibited high efficiency at the design point but experienced abnormal vibration and noise under off-design conditions. Preliminary analysis suggested this was likely due to uneven dynamic pressure distribution at the outlet, caused by flow separation, vortices, or insufficient mixing of wake flows. Traditional single-point or sparse multi-point measurements are inadequate for capturing full cross-sectional details.
Core objectives included:
Accurately obtaining transient and time-averaged dynamic pressure distribution maps across the entire outlet section.
Quantifying uniformity levels and identifying localized low/high-pressure areas.
Analyzing distribution patterns under different flow conditions (rated, high, low flow).
Correlating flow non-uniformity with internal fan aerodynamics to guide design improvements.
II. Advanced Testing Methodology
A specialized multi-probe measurement rake system was deployed for synchronized scanning.
High-Precision Measurement Rake: A custom-designed rake with an array of high-response mini-pitot tubes or dynamic pressure sensors was positioned to form a dense grid covering the entire outlet section (annular or rectangular).
Synchronized Data Acquisition: A high-precision data acquisition system synchronized all probe signals at a sampling frequency sufficient to capture transient flow dynamics, recording both mean and fluctuating values.
Test Conditions: Tests were performed on a dedicated fan test rig across multiple steady-state operating points, from near-surge low flow to beyond-rated high flow.
III. Data Processing and Visualization
Extensive raw data was processed into intuitive flow field images.
Data Post-Processing: Instantaneous dynamic pressure data from each point was time-averaged. Interpolation algorithms were then used to construct a continuous data field from the discrete measurement points.
Distribution Visualization: High-resolution dynamic pressure distribution curves and color contour maps (or 3D plots) were generated. These visualizations clearly highlighted high-pressure (red/yellow) and low-pressure (blue/purple) zones, making even minor flow anomalies clearly visible.
IV. Analysis and Key Findings
Comparative analysis of dynamic pressure maps across different operating points yielded critical insights:
Uniformity Assessment: At the rated condition, the overall distribution was relatively good. However, distinct localized low-pressure zones were identified near the volute tongue and the impeller hub, indicating stable vortex regions responsible for energy loss and potential noise.
Operational Comparison:
Low Flow: Low-pressure zones expanded significantly with intense pressure fluctuations, indicating entry into an unstable operating regime with rotating stall/flow separation, correlating with observed vibration spikes.
High Flow: High-pressure areas became more concentrated, improving overall uniformity, but new high-velocity jet regions appeared at the outlet edges, suggesting suboptimal diffuser performance in the volute.
Root Cause Diagnosis: The non-uniform patterns were traced back to:
Impeller Design: Potential for optimizing blade profile or installation angle at specific radial positions to improve outlet flow angle distribution and reduce secondary flows near the hub.
Volute Matching: The volute profile, especially the geometry and clearance of the volute tongue, directly influenced the observed circumferential non-uniformity.
V. Test Value and Optimization Application
The test's value extended beyond problem identification to guiding effective solutions.
Informing Impeller Redesign: The data provided a reliable benchmark for CFD-based reverse optimization of the impeller, allowing targeted adjustments to blade loading to rectify identified flow deficits.
Guiding Flow Straightener Optimization: The precise location and extent of identified vortices enabled the targeted design of guide vanes or flow straighteners, minimizing pressure loss while maximizing flow uniformity.
Enhancing Overall System Performance: Improving outlet dynamic pressure uniformity effectively reduces total pressure loss, boosts operational efficiency for energy savings, and mitigates vibration and noise sources, enhancing reliability and environmental performance.
Conclusion
This successful test demonstrated the power of detailed flow field measurement in rotating machinery R&D. The custom rake system provided a "CT-like" scan of the complex 3D unsteady flow, transforming abstract "flow non-uniformity" into concrete, visualizable data. This process not only precisely diagnosed the root causes of performance limitations but also advanced aerodynamic design from experience-based assumptions to a data-driven, precision optimization stage, laying a solid foundation for developing next-generation high-performance, low-noise, and highly reliable fan products.
Copyright © 2009-2025 BM Genuine Sensing Technology (Shanghai)Co.,Ltd. All Rights Reserved.